首页
关于我们
生产流程
产品展示
新闻中心
人才招聘
联系我们
18118387157
|
245931791@qq.com
搜索
工艺精湛
追求卓越至臻

专注研究开发提供专业干燥设备

干燥系列
制粒系列
混合系列
粉碎系列
辅助系列
固废专用

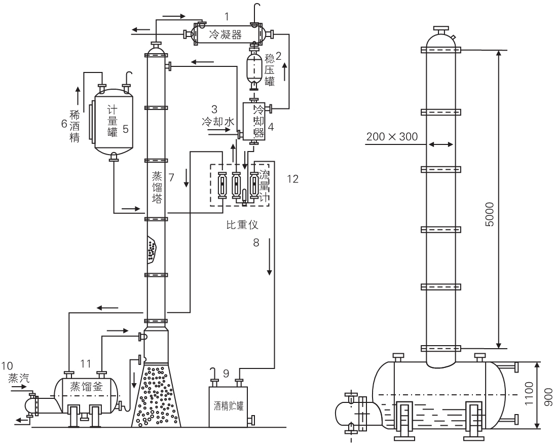
JH 系列酒精回收塔

概述

1.酒精回收塔有塔釜、塔身、冷凝器、冷却器、缓冲罐、高位贮罐六个部分组成,适用于制药、食品、轻工、化工等行业的稀酒精 回收,本设备与物料接触部分均采用OCr18Ni9不锈钢制造,具有良好的耐腐蚀性能,并且有节能、环保、降低生产成本、提高效 率的优点。本装置可将30度-50度的稀酒精蒸馏到90-93度,残液排放含醇度低,符合环保要求。 

2.本装置采用高效不锈钢波纹填料。接触物料部分采用不锈钢制作符合GMP标准。

技术参数

JH 系列

结构示意图

JH系列